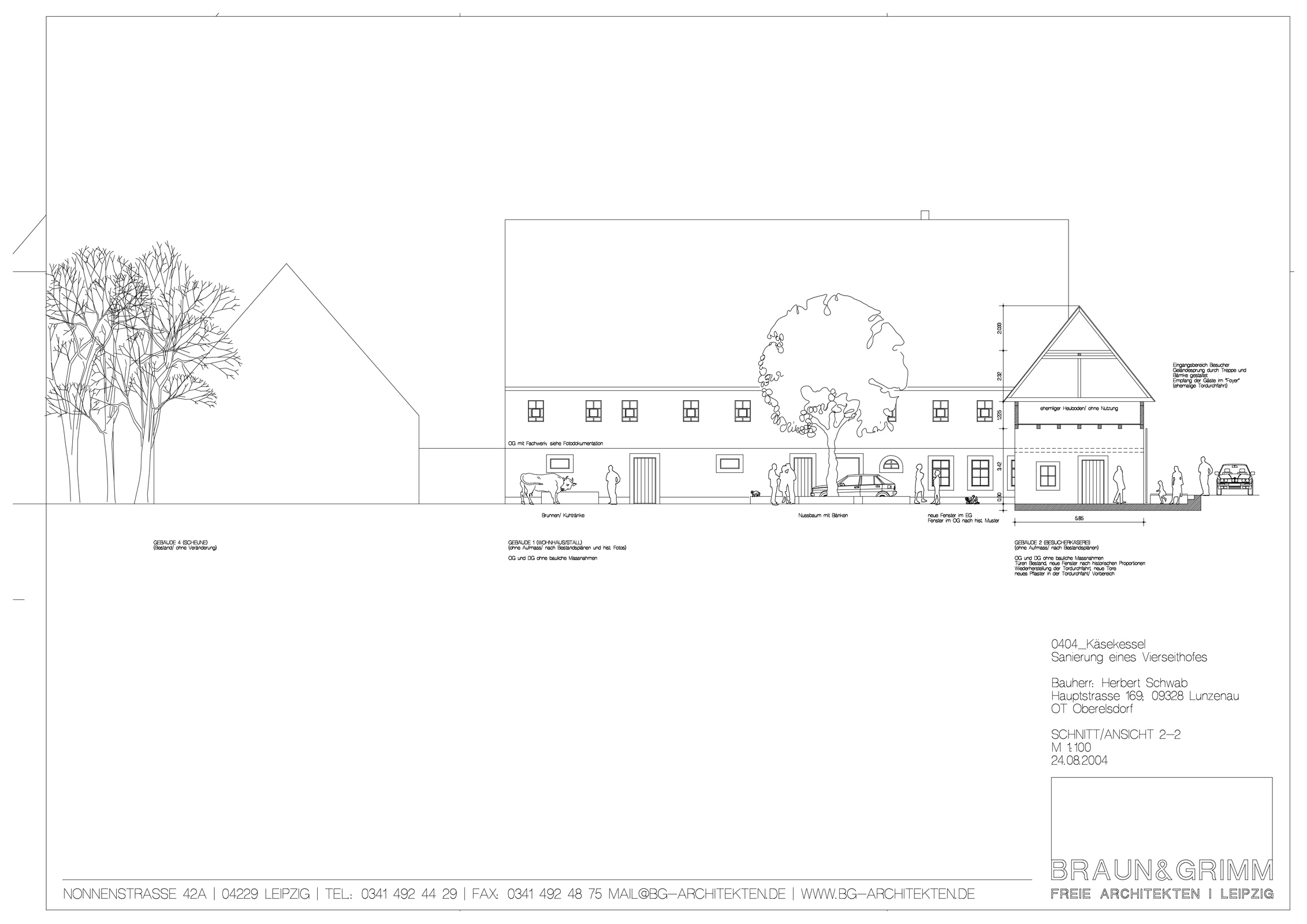
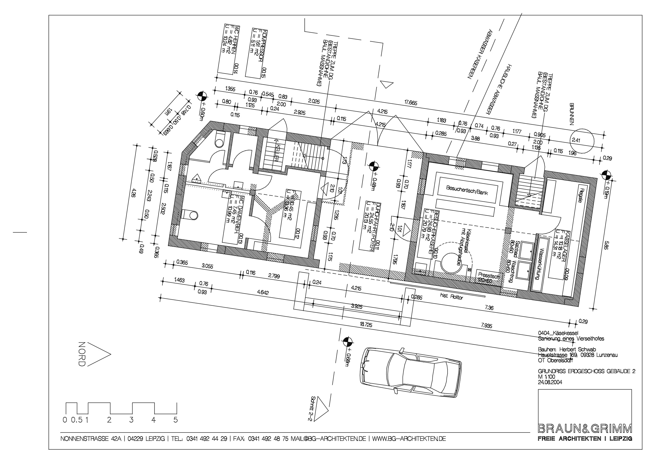
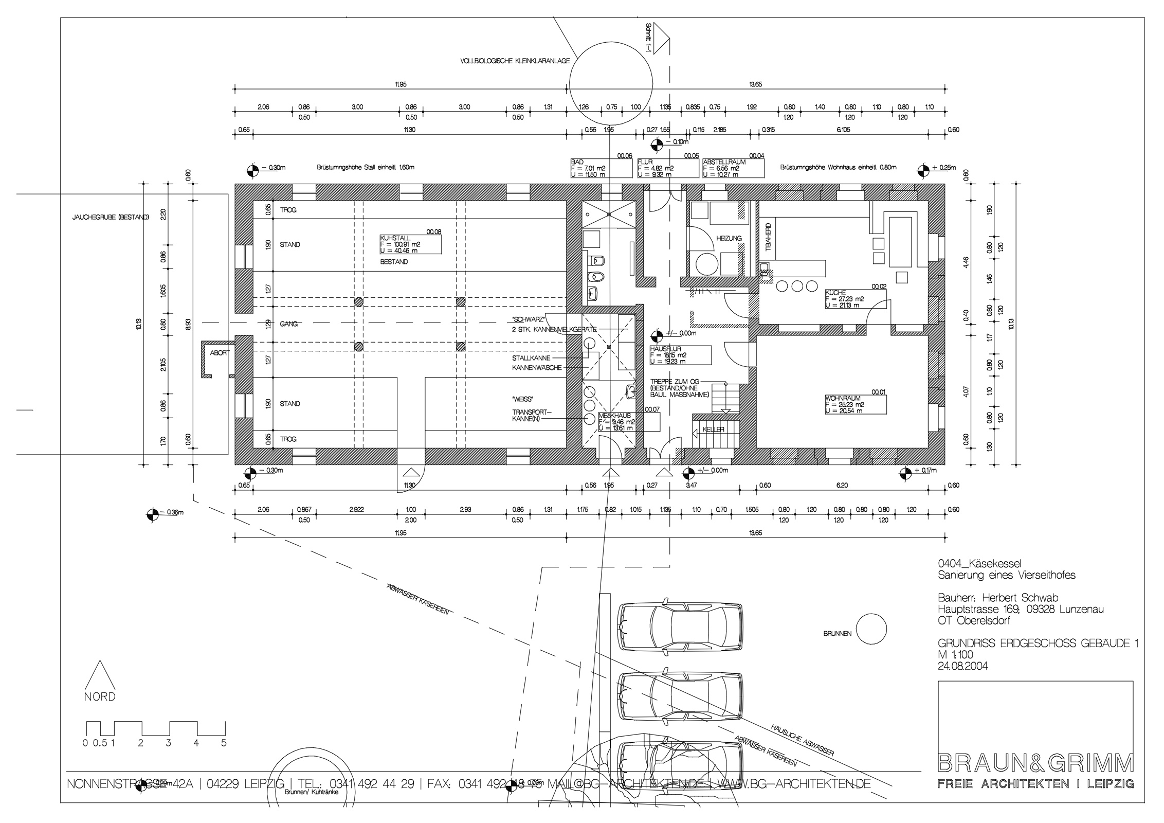
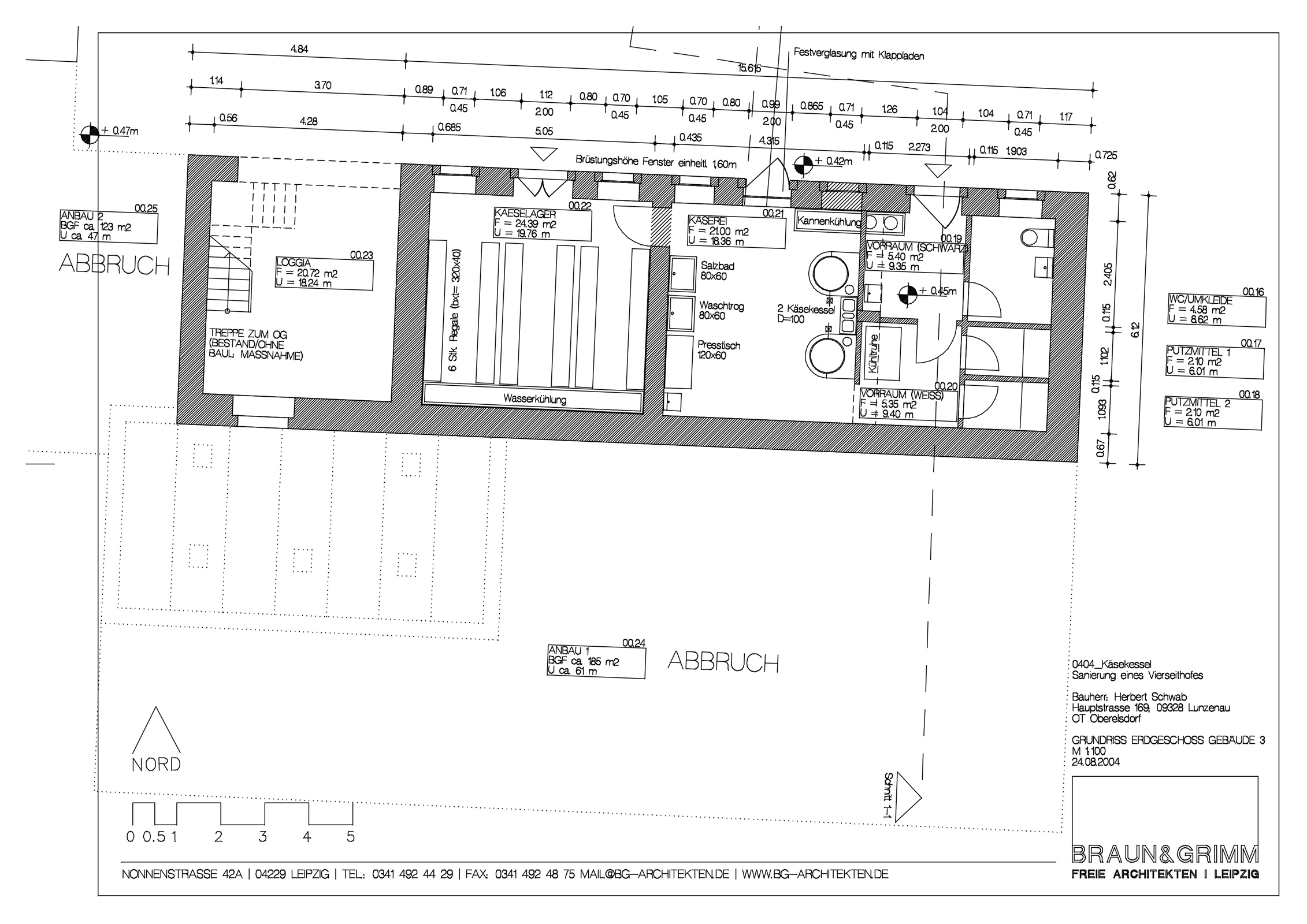
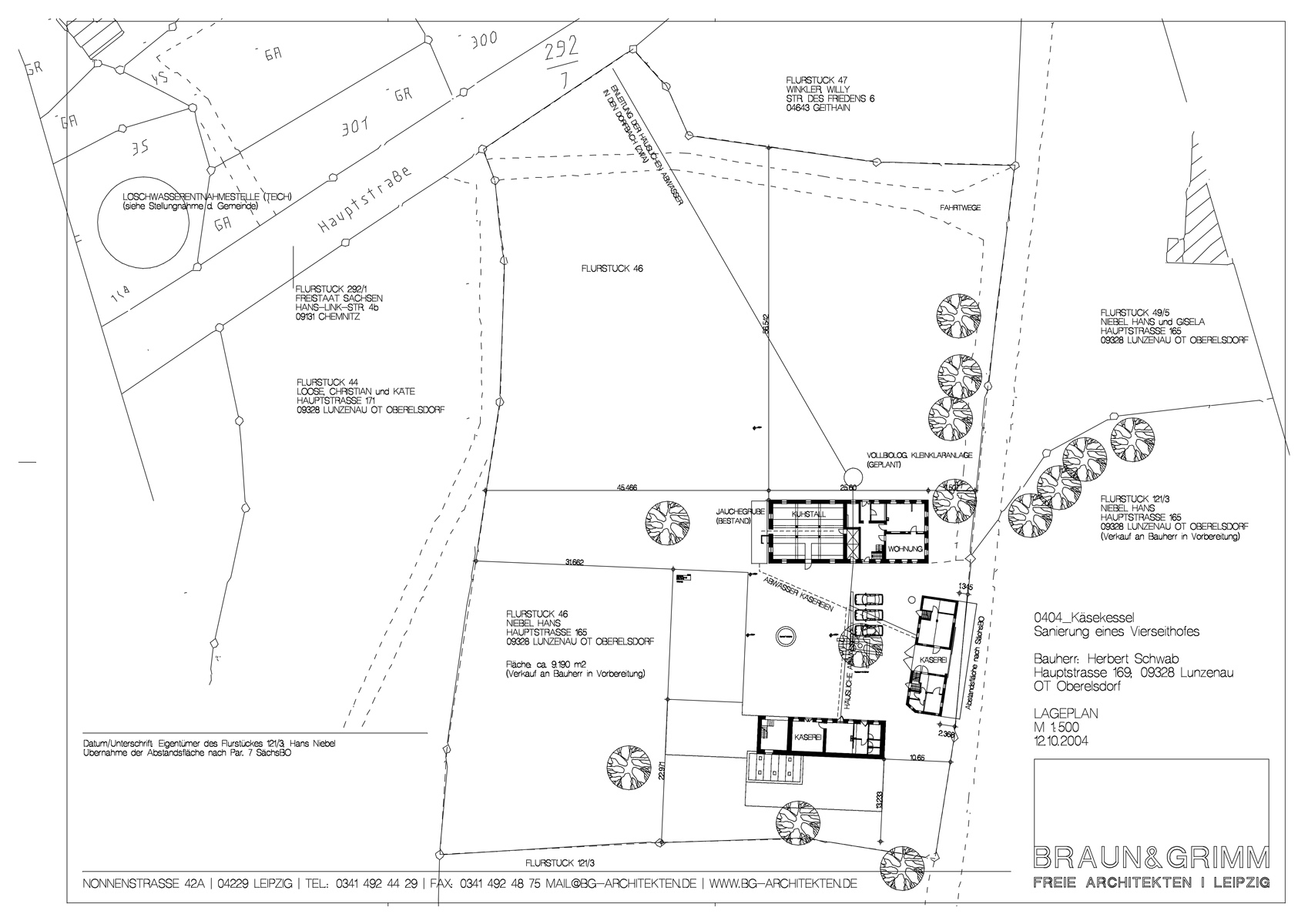
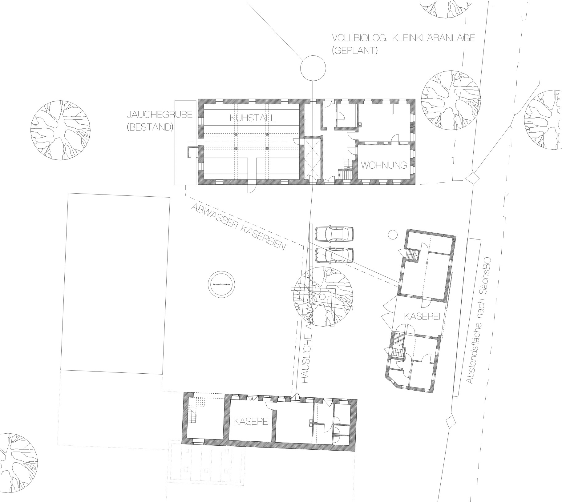
PROJEKT

Vierseithof mit Käserei
Umbau / Sanierung

Umbau + denkmalpflegerische Sanierung
Nutzfläche ca. 470 m²

Bauherr: privat
Leistung (HOAI): Planung (LP 1–4)
Jahr: 2004

Zurück

 

Vierseithof mit Käserei

Umbau / Sanierung

Weiterlesen …

Wohnhaus Feld, Steinen (Schwyz)

Umbau / Sanierung

Weiterlesen …

Uhrenmanufaktur A.Lange & Söhne, Glashütte i.Sa.

Neubau

Weiterlesen …

Wohnhaus, Am Mädelgraben, Pirna

Neubau

Weiterlesen …

Wohnhaus Bergander, Niedersteinbach

Umbau / Sanierung

Weiterlesen …

Wohnhaus, Schmiedestraße, Pirna

Umbau / Sanierung

Weiterlesen …

KiTa Limonadenbaum, Seminarstraße, Pirna

Sanierung

Weiterlesen …

Stadtwerke Pirna

Neubau

Weiterlesen …

Kutscherhaus Schloss Zehista, Pirna

Umbau / Sanierung

Weiterlesen …

 

 

Kontakt

Sie möchten uns besser kennenlernen? Rufen Sie uns gerne an oder schreiben Sie uns unverbindlich über unser Kontaktformular – Wir sind gespannt auf Ihr Projekt und freuen uns auf Sie!

BRAUN | Architektur  

Schmiedestr. 25
01796 Pirna

+4935014625170
info@braunarchitektur.com